导读
截至2020年底,全国地级及以上城市2914个黑臭水体消除比例达到98.2%。“十四五”期间,生态环境部将继续以水生态保护修复为核心,巩固深化碧水保卫战成果,积极推进美丽河湖保护与建设。
2020年10月,中国城镇供水排水协会发布《城镇水务2035年行业发展规划纲要》,其在城镇水环境2035年总体目标中提出在彻底消除黑臭水体基础上,提升水体景观和游憩功能,营造优美宜居的城镇水生态环境,人体可直接接触类或休闲娱乐类城镇水体比例不低于80%,有条件的地区向更高的生态环境目标迈进。
近年,政策推动下,众多城镇河道治理后焕发新生,黑臭水体华丽转身为城镇中心地区清水绿岸的新景观带,人水和谐亲近,体现了人民城市为人民的理念,是城镇更新建设中的关键点睛之笔,也是行业发展规划目标方向。
黑臭水体治理手段主要有污染源控制及治理,水动力改善及水力调控,水质净化与生态修复,综合管理及工程运行与维护等。控源截污是河道治理首要步骤,相对于更高标准的景观用水需求,河道水质往往仍然无法满足要求。在生境条件差和场地空间限制的城市中心,无法实施原位处理修复,且无再生水系统补给时,建设旁路处理的水体净化工程是必要的,以进一步提升水体水质,满足景观补水需要。净化工程本身作为长期治理措施时,需要考虑与周边景观的有效融合。
本案例为劣V类水源条件下,在生境和场地限制的城市中心建设旁路处理的水体净化工程,构建生物浮滤池为核心的多级处理流程,主体工程置于地下,满足周边景观要求,巧妙实现工艺过程融合,竖向叠合和平面贴合,出水浊度小于1.0 NTU,氨氮去除率大于40%,达到高标准景观水要求。
1、项目基本情况
1.1项目概况
D江改造规划后定位为城市中心地区的新景观带,形成区域内新的城市级商业和文化博览中心。D江水质净化工程即为水质净化处理后,回流至D江,作为河道景观水。
1)水量目标:1.5 m3/s,每天运行16 h。
2)用地条件如下。
(1)地下式:工程用地上部设置市民活动广场,布置绿化及运动场所,与周边景观相融合,主体构筑物必须设置于地下。
(2)场地小:地下占地面积仅为2 490 m2(含围护用地),地上占地面积仅约为500 m2。
1.2进出水水质
1.2.1原水水质分析
D江水质净化工程原水为劣V类水质,主要污染物有藻类、悬浮物、氨氮、五日生化需氧量等。水源水质五年统计数据情况如下。
(1)藻类平均值达到300万~500万个/L;
(2)颗粒悬浮物SS平均值≤27 mg/L;
(3)氨氮平均值为5.75 mg/L,最高值为6.44 mg/L,地表水V类标准限值为2 mg/L;
(4)BOD5平均值为13.72 mg/L,最高值为21.70 mg/L,地表水V类标准限值为10 mg/L;
(5)溶解氧平均值较低,约为1.5 mg/L,地表水V类标准限值为2 mg/L。
1.2.2出水水质要求
出水水质达到无嗅、无味、清澈的总体目标,主要指标应优于《地表水环境质量标准》(GB 3838—2002)的Ⅴ类标准和《城市污水再生利用景观环境用水水质》(GB/T 18921—2019)的娱乐性景观环境用水(河道类)标准。
本工程废水直接排入市政管网,由市政污水处理厂统一处理。
1.3工程建设难点
(1)原水差,去除对象种类多,出水标准高
原水氨氮、有机物高,溶解氧低还有藻类干扰,仅单座滤池或气浮等单一工艺过程难以完成工程目标,多种处理工艺手段的综合利用必然是不可或缺的。
(2)用地小,且主体位于地下
工程地下部分场地面积仅相当于普通滤池,需要布置主体处理构筑物和地下提升泵房,还需安排上下人流、物流通道。
综上,考虑复杂原水、场地空间受限和高标准出水的工程条件和目标,工艺选择应因地制宜,并综合应用多工艺组合,相应的工艺布置也需要面对较高挑战。
2、主体工艺选择及组合
2.1工艺思路分析
2.1.1工艺路线
工艺处理主要去除目标为藻类、浊度、氨氮和微生物等,需要综合悬浮物截留、生物除氨、化学消毒等不同处理工艺,提升协同效能,实现出水水质稳定达标。
有限地下空间条件下,工程设计必须要创新工艺组合和巧妙综合布置,实现小空间高效能的综合效应。
工艺路线针对性选用气浮法+生物法+微絮凝过滤+光催化氧化及次氯酸钠消毒的组合工艺,达到效能倍升效果。
(1)气浮法加强藻类和其他悬浮物去除
藻类密度小,不易沉降,而气浮法去除水中难以沉降悬浮物较有优势,现已广泛应用于藻类和其他悬浮物的去除。气浮法还可以防止藻类堵塞滤池,减轻滤池截留负荷,并利用其气提作用,部分去除水中色度。
前加氯等预氧化措施也可以杀灭水中藻类,但工艺处理停留时间较短时,余氯浓度会较高。考虑后续工艺还需要依靠生物作用去除氨氮、有机物等,应避免余氯影响,不能使用前加氯等预氧化措施。
(2)微絮凝直接砂滤+气浮保证出水浊度
砂滤与气浮相结合形成浮滤池,可以适应的原水浊度范围更宽,总体运行负荷更高,出水效果更优。在进水浊度不高情况下,微絮凝直接过滤+气浮可以长期稳定运行,出水浊度可在1 NTU以下。
除滤池本身滤料粒径级配和滤层厚度,以及进出水分配均匀等关键因素外,其前部来水水质改性对于保证滤池出水水质也非常关键。过滤理论认为过滤主要是悬浮物与滤料之间黏附的结果。因此,来水悬浮物加药改性,提高黏附性能至关重要。同时对于无沉淀的直接过滤工艺,与沉淀工艺对絮凝的要求不同,絮体颗粒不宜过大,粒径大致为40~60μm,以便于深入滤层深处,从而提高滤层含污能力,防止过早堵塞滤池。气浮工艺对于微絮凝的要求与直接过滤相同,去除改性后的小絮体效果更佳,过大絮凝难以气浮分离。综合过滤和气浮需求,考虑在前部设置混合絮凝设施,增强原水过滤性能,同时设计絮凝时长约3~5 min,以避免絮体过大,影响过滤和气浮效果。
(3)生物法去除水中氨氮
生物法中颗粒填料的氨氮去除效果一般优于纤维填料,沸石陶粒组合填料的氨氮去除效果高于单一陶粒填料,在水力停留时间为0.5 h条件下,沸石陶粒组合填料的最大氨氮去除负荷大约为0.44 kg NH4+-N/(m3∙d),而陶粒填料的最大氨氮去除负荷约为0.37 kg NH4+-N/(m3∙d)。沸石陶粒填料的出水浊度比陶粒填料更低、更稳定,但水损增长更快。
原水浊度较高时,沸石陶粒冲洗次数会过高,导致废水量过大,冲洗排队严重影响正常过滤,另冲洗过多会影响到滤层内生物量,反而影响生物处理效果。在陶粒已具有较高氨氮处理效果的条件下,工艺应首先保证滤池正常过滤冲洗,陶粒滤料运行更为可靠,而且还可以利用陶粒生产过程中的密度可控性,形成与砂层相适应的密度和粒径的级配关系,提升浊度控制效果,并避免冲洗乱床问题。因此,滤料可以选用陶粒与砂层组合,保证氨氮与浊度的双重处理效果。
生物陶粒作用同时也可以有效地降低BOD5。在淮河蚌埠生物预处理示范工程中,生物陶粒的BDOC去除率达到73.91%。
为了保证生物处理效果,水中还需要补充溶解氧。考虑充氧设备无法与气浮和过滤工艺设于一池,需要独立设置,而日常运行中跌水曝气是一个水力过程,省去了曝气控制管理的繁琐工作,在充氧量需求较低时,不失为最佳选择。赵军采用跌水曝气沸石床工艺,跌水曝气复氧效果明显,出水DO保持在3.5 mg/L以上,足以满足微生物生长需要。试验原水TN浓度为33~95 mg/L,TN去除率为35%~50%。跌水曝气取代鼓风曝气,节约能耗,降低工程费用和运行成本。
(4)光催化氧化保障生物安全和降低氨氮,次氯酸钠为备用。如原水氨氮过高,光催化氧化工艺切换为折点加氯,去除氨氮和保证消毒。
(5)废水满足排入城镇下水道水质标准
考虑无用地条件,经与管理部门协商,工程废水直接排入市政管网。工程处理工艺主要是对水中悬浮物、氨氮和有机物的去除,其中:悬浮物出水浊度如为1 NTU,排水量约为产水量的5%,对应原水浊度27 NTU悬浮物浓缩约20倍,则排水悬浮物浓缩最高为520 mg/L;工艺中对氨氮、总氮类会直接予以减量,没有浓缩效应,排水相对原水会更为改善;处理过程中有机物去除量,类比给水处理中完善的沉淀和过滤的较高去除率约60%,不考虑生化的去除,而仅仅保守估计浓缩去除量60%的20倍,对应原水水质BOD5最高值21.70 mg/L,则排水中BOD5最高为260 mg/L。其他指标浓缩效应较小。因此,工程废水可以符合《污水排入城镇下水道水质标准》(GB/T 31962—2015)。
2.1.2工艺流程
综合各工艺能力分析,考虑工程场地狭小,多种工艺应当融合形成综合池体来完成工程目标,故采用浮滤池(上海市政总院专利技术)处理工艺,并提升滤料性能,采用陶粒层取代大部分砂滤层,形成气浮生物滤池。进水端采用无需设备的跌水曝气,易于与浮滤池相结合,出水采用光催化氧化法消毒,同时以次氯酸钠折点加氯为备用,出水端增设跌水曝气提升出水溶解氧量,提升出水水质。工艺流程以气浮生物滤池为核心,综合为跌水曝气+微絮凝+气浮生物滤池+光催化氧化消毒(次氯酸钠备用)+跌水曝气的组合工艺。工艺流程如图所示。

2.1.3集约化组合设计
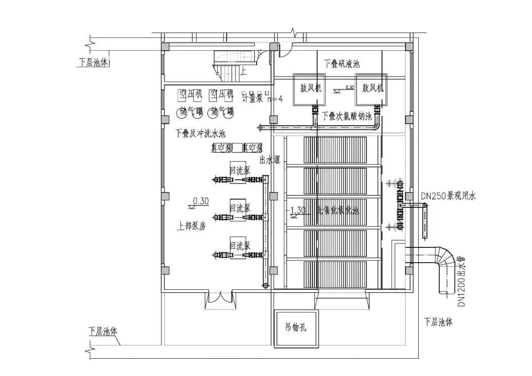
工程主体置于地下,以保证景观用地,营造宜人休闲环境。在考虑高程衔接和场地布置条件下,混合絮凝、浮滤池、气浮溶气和释气设备、清水泵、冲洗排水泵等置于地下层,其余溶气回流泵及空压机系统、反冲鼓风机、反冲洗水池、光催化氧化系统、加药系统和控制用空压机等置于地面层。有条件的主要设备置于地面,便于使用、管理和维护,同时可以减少地下空气湿度大而导致的设备损害问题。
工程实现多种处理工艺过程融合,以及构筑物竖向空间叠合及平面布置紧密贴合。
(1)工艺过程融合
多种工艺过程的混合、絮凝、生物、气浮与过滤同池融合,尤其是气浮生物滤池的利用,气浮与生物、过滤等多工艺过程实现同池面的上下过程同步处理。出水的光催化氧化以及次氯酸钠消毒也是同池面处理。整体工艺过程不简化,布置融合化。
(2)竖向空间叠合
有限平面空间的条件下,构筑物辅助设备、出水及消毒通道、主体浮滤池分上、中、下三层布置,充分挖掘竖向空间。多层叠合布置兼顾了处理流程需求和设备层尽可能设于地面层的便利性。
(3)平面布置贴合
各处理单元平面直接贴合,顺畅连通。混合絮凝串联,出水直接进入浮滤池进水配水渠道,滤池出水清水渠道兼做泵房吸水渠,兼顾水流通道及水量调节功能,而出水消毒配水通道兼做反冲洗水池和回流水池。水处理流程除下部提升至出水,无专设连接管道,水损小,效率高。全平面紧凑布置,高效利用。
3、气浮生物滤池特点
气浮生物滤池是将气浮与滤池相结合的一种水处理构筑物形式,利用滤层上部的水深空间作为气浮的分离区,滤池上方设有刮渣设备,清除浮渣。另外在滤池的进水端设置气浮接触池。
翻板滤池是最适用于气浮生物滤池的一种滤池形式。主要优势表现于.
(1)翻板滤池的滤层上水深较大。利用滤层上部空间实现气浮与过滤的上下分离,减轻过滤杂质负荷。
(2)翻板滤池不设中央排水槽。过滤布水布气系统均布,与气浮平面分布要求一致,工程占地也更为节约;
(3)滤池出水系统均衡性有助于气浮分离。滤池布水布气系统与滤层的均衡布水作用,远优于常规气浮下部出水的穿孔管,可以消除因下部出水不均衡导致上部气浮分离效果差的影响。
(4)滤层稳定性高,便于设置生物陶粒和石英砂双层滤料。由于冲洗排放的特性,翻板滤池无需担心冲洗跑滤料,便利设置双层滤料,分层效果更优,在常规石英砂滤料的基础上,增设生物陶粒,强化滤池的生物处理能力,同时双滤层共同保证出水浊度。
4、主要工艺设计参数
气浮生物滤池下层平面尺寸为24.70 m×88.70 m,地下部分深约为12 m,共8格滤池,分为2组单排布置,图2中仅表达了一组混凝絮凝浮滤池4格及下部泵房(设有清水泵和冲洗排水泵),左侧延伸另外一组4格。地上部分占地面积仅约为500 m2。各平剖面布置如图2~图6所示。





为便于描述,本文依工艺过程介绍。
(1)混合絮凝
每组混合跌落池混合时间约为32 s,出水经堰跌落曝气出水,跌落高度为0.40 m,为无需控制方式。每组絮凝阶段时间总共约为3 min,分为3格,每格分别设絮凝搅拌机,每组共3台,功率为2.2 kW,变频调速。絮凝池出水形成细小矾花,为气浮和过滤做好准备。
(2)浮滤池
浮滤池每组设置4格,对称分置于混合絮凝池两侧。
气浮生物滤池设有气浮接触区,气浮分离区,滤池过滤区。滤池过滤区设于气浮分离区下方。
气浮接触区:进水渠经进水后导流,释放器上部区域。
气浮接触区上部上升流速约为20 mm/s。进水在接触区与释放器释出的气泡相接触,完成气泡与细小絮体的黏附后,形成带气絮粒,有利于下阶段的分离。
气浮分离区:滤池滤层的上部区域。
气浮分离区单格平面面积为100.22 m2。带气絮粒上升形成浮渣,间歇性刮渣去除。水中较轻的悬浮物去除效果良好,尤其对于藻类和色度去除优于其他常规处理工艺。
滤池过滤区:也即滤层区域。
过滤区位于气浮分离区下方,与气浮分离区同平面尺寸。部分气浮未分离的絮粒随水流向下,经滤料过滤去除。
滤池正常滤速:7.63 m/h。
滤池采用双层滤料:
上层陶粒滤料:粒径1.6 mm~2.5 mm,d10=1.80,K80≤1.30,厚度为1.1 m,表观密度小于为1.20 g/cm3,球形度0.90以上,比表面积(单位质量滤料的表面积):≥1.0×104 cm2/g,具有亲水性,其他技术指标优于《水处理用人工陶粒滤料》(CJ/T 299—2008)。
下层石英砂滤料:粒径哦0.7~1.2 mm,K80≤1.4,厚度为0.5 m,密度约为2.65 g/cm3。在气浮处理基础上,过滤水中浊度有保障。
双层滤料上部的陶粒滤料可形成较好的生物作用,对水中氨氮和有机物均有较好的去除作用。
施工时,双层滤料应分层装填,下层砂层装填清洗完毕后,再装填上层陶粒,便于逐层清洗并减少乱层。滤料补充和更换可以采用水射器方式来替代人工操作,减少劳动强度和提高工作效率。
(3)溶气回流系统
溶气回流系统包括回流泵、溶气用空压机、溶气罐和释放系统。回流泵和溶气用空压机设于地面层,溶气罐和释放系统设于地下层。本工程设定回流比约为10%。
回流泵设有3台,2用1备,单台能力为280 m3/h,扬程为31 m,功率为45 kW。
溶气供气量为48 m3/h,设有空压机供气。
每格滤池外设溶气罐1只,采用TR8型填料罐,自带气水界面控制。
每格滤池内设TVⅢ型溶气释放器,共13只,安装于回流溶气水管DN200上,置于接触区下方。
(4)反冲系统
一般滤池冲洗紧接于排渣后,防止冲洗导致浮渣下沉至滤层内,影响运行和后期冲洗效果。
翻板滤池配套气冲和水冲2种冲洗方式。
罗茨鼓风机设置2台,1用1备,风量为6 015 m3/h,风压哦5 m,功率为132 kW。
本工程在地上建筑回流水泵房下方设置反冲洗水池,供冲洗和回流水用。
滤池充分利用反冲洗水池的高度,重力流冲洗。因水冲洗分为小水量和大水量2种冲洗强度,采用2种冲洗立管分别为DN400和DN800,以便于流量控制。出水立管上分别设调流阀和流量计。
5、运行效果及经济性分析
5.1运行效果
工程运行测试时,进水浊度短期达到100 NTU,远高于调查数据,出水浊度仍可保持小于1.0 NTU。气浮开启,滤池运行周期明显增长1倍以上,可达16 h,体现了浮滤池组合工艺的效能。在进水氨氮达到4.50 mg/L,生物处理和光催化氧化系统出水氨氮为1.50 mg/L,去除率达到66.7%;进水氨氮2.18 mg/L时,出水氨氮为0.193 mg/L,去除率超过90%。组合工艺中生物滤池氨氮去除量约占总去除量中的80%,生物挂膜成功,氨氮去除效果明显。
D江水质净化工程出水水质指标全面优于工程目标,运行良好稳定。
河道整治换水后,由臭水沟变成涓流溪水,成为市中心的亲水休憩运动景观带,为城市增加了一抹靓丽,为广大市民提供了和谐家园,工程取得了很好的社会效益。
5.2经济性分析
工程总用地约为2 490 m2。集约化组合设计大幅减少了用地,仅仅考虑气浮和滤池的融合,辅助加药系统、反冲水池和光催化消毒系统等的叠建,总体用地为常规用地的50%,另还减少了建构筑间距和交通通道等用地。不计因此而减少的地下工程围护工程量,构筑物土建工程费用减少约3 000万元,同时大幅缩减了施工周期。
6、结论
(1)河道水质旁路强化处理是水体治理手段之一,可以补充景观水源,提高景观水体比例,建设清水绿岸的宜居宜业景观带。
(2)应对复杂原水中藻类、浊度、氨氮和微生物等污染物时,选择悬浮物截留、生物处理和化学消毒的综合工艺技术路线,构建气浮生物滤池为核心的跌水曝气+微絮凝+气浮生物滤池+光催化氧化消毒(次氯酸钠备用)+跌水曝气的工艺组合,可以提升协同效能,实现出水水质稳定达标。
(3)有限地下空间条件下,工程设计必须要创新工艺组合和巧妙综合布置,实现多种处理工艺过程融合,以及构筑物竖向空间上下叠合及单元布置紧密组合,创造小空间高效能的综合效应。












